
Städtisches Krankenhaus Pirmasens
Erweiterung und Sanierung

Massenstudie mit westlichem Neubau
Der Neubau
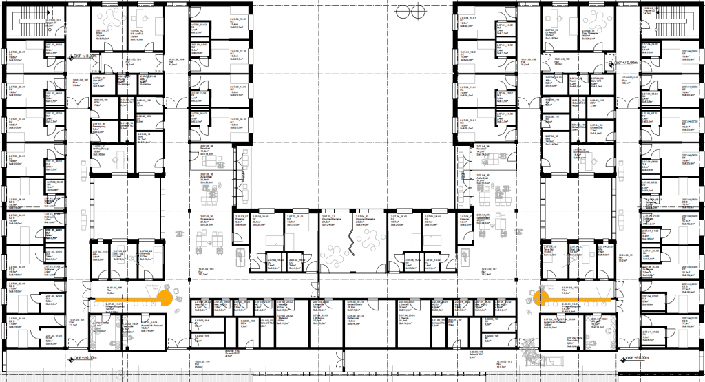
Die Erweiterung des Städtischen Krankenhauses Pirmasens erfolgt im ersten Bauabschnitt als vier- und sechsgeschossiger, flachgedeckter Baukörper auf der Westseite des Bestandsgebäudes. Der Neubau teilt mit dem Altbau einen gemeinsamen Innenhof und gliedert sich in zwei Bauteile, die sechsgeschossige Somatik als südliches Bauteil und die viergeschossige Psychiatrie/Geriatrie als nördliches Bauteil.

Bauteil Nord – Psychiatrie und Geriatrie
Der viergeschossige, U-förmige Baukörper der Psychiatrie schließt nördlich an die Somatik und das Bestandshaus an. Er liegt in einer Senke, an der tiefsten Stelle des Grundstücks, auf Höhe des dritten Bestands-Untergeschosses und umschließt dreiseitig einen nach Norden geöffneten, teilweise unterkellerten Hof. Nördlich der Psychiatrie bildet sich ein dreieckiger, eingezäunter Garten, dahinter steigt das Grundstück zum Wohngebiet an der Landauer Straße hin steil an. Auf der Ostseite liegen der Mitarbeiterparkplatz und der Wirtschaftshof, nach Westen hin findet sich der offene Garten der Tagesklinik.
Auf den Ebenen vom U3 bis zum Erdgeschoss bindet der Psychiatrieneubau mit seinen vier Vollgeschossen ebenengleich an die Treppenhäuser und Aufzugsgruppen der Somatik und des Bestandsbaus an. Über diese Bauteile erfolgt die barrierefreie Erschließung vom Haupteingang an der Pettenkoferstraße her.

Für Mitarbeiter, für die Anlieferung der Apotheken- und Sterilgüter und für die Tagesklinik Psychiatrie gibt es zwei zusätzliche Eingänge im dritten Untergeschoss von der Ost- bzw. Westseite.
Als vertikale Erweiterungsoption wurde eine spätere Aufstockung um drei weitere Vollgeschosse statisch berücksichtigt. Darüber hinaus ist der Baukörper so ausgelegt, dass er auch horizontal nach Osten erweitert werden kann.
Ein äußerer Verbindungsflur erschließt die Pflegebereiche auf allen Ebenen und bildet einen Ringschluss sowohl mit dem somatischem Funktionsbau als auch mit dem Bestand.

Offenes Pflegekonzept
Psychiatrische Pflege
Das U-förmige, nach Norden geöffnete Gebäude folgt einem Pflegekonzept der kurzen Wege und leichten Orientierung. Die Doppelflurstationen mit ihrem mittigen Bund aus Neben- und Diensträumen an einem internen Atrium lassen eine sehr gute Tageslichtnutzung und Transparenz zu. Sie sind für vielfältige und sich wandelnde Pflegekonzepte geeignet. Der Arztdienst liegt im ersten Untergeschoss der Somatik, der psychiatrischen Pflegestation direkt gegenüber.
Die Kopplung zweier Stationen mit gemeinsamem Verbindungsflur erzeugt Synergien und erlaubt eine differenzierte Belegung.
Der Verbindungsflügel schafft gegliederte Pflegebereiche mit 2 x 2 Zimmern, die separat genutzt und wechselnd von beiden Stationen belegt werden können. An der Schnittstelle zwischen den Stationen liegen die beiden großen Therapieräume. Sie sind zusammenschaltbar und sollen flexibel, vorwiegend für Gruppen und Gesprächstherapien, genutzt werden.

Auch Räume der Versorgung mit Material, Geräten, Betten liegen hier zentral für beide Stationen.
Der kurze Binnenweg zwischen den Stationen ermöglicht dem Personal bei Bedarf eine schnelle, gegenseitige Hilfe oder Unterstützung.
Das psychiatrische Pflegekonzept des Städtischen Krankenhauses basiert auf dem Prinzip der offenen Pflege und des sogenannten „Potsdamer Tisches“ oder „Flurtisches“:
Auf allen vier Stationen finden sich Patienten mit Krankheitsbildern unterschiedlicher Ausprägung und Schwere. Der Zugang zur Station wird kontrolliert offengehalten. Ein zentral im Flur positionierter Arbeitsplatz, der „Flurtisch“, der ständig durch Pflegepersonal besetzt ist, dient als „lebendige Barriere“.
Sicherheit und Schutz werden durch die persönliche Ansprache der Pflegekräfte gewährleistet. Hierzu erfolgt auch im Doppelflursystem der Zugang zur Station durch nur einen Eingang.

Pflegezimmer Psychiatrie
Je zwei der vier Stationen der psychiatrischen Pflege liegen mit jeweils 25 Betten paarweise auf den Ebenen UG 1 und EG. Jede Station ist als Zweiflursystem um einen Atriumhof konzipiert. Die 13 Einzel- und Doppel-Pflegezimmer sind jeweils nach Osten und Westen orientiert.
Räume der Ergotherapie und Diensträume für das Personal sind nach Norden ausgerichtet. Im Mittelbund liegen die Nebenräume für Pflege und Technik.
Die in unmittelbarer Nähe zum Stützpunkt und Flurtische liegenden Zimmer sollen für eine intensive Patientenbetreuung genutzt werden. Türelemente mit verglastem Seitenlicht dienen hier einer möglichst beiläufigen Einsicht und sozialen Kontrolle vom Flur aus.
Speise- und Aufenthaltsräume orientieren sich mit einer Loggia zum gemeinsamen Innenhof. Das Atrium sorgt für viel Tageslicht in den Fluren und anliegenden Räumen. Der Raucherraum ist nicht separiert, sondern über verglaste Innenwände mit in den Aufenthaltsbereich eingebunden.


Schnitt durch den geschützten Innenhof
Projektdaten
Städtisches Krankenhaus Pirmasens
Erweiterung und Sanierung
Neubau psychiatrische und geriatrische Pflege mit 130 Betten, Tagesklinik, Ergo- und Physiotherapie, Arztdiensten und Apotheke
in Zusammenarbeit mit a-sh sander hofrichter architekten GmbH, Ludwigshafen
BGF Erweiterung Gesamt: 28.550qm,
BGF Bauteil Psychiatrie und Geriatrie: ca. 10.800qm
Zielplanung 2022-2023,
LP 1 -2 Vorplanung: 2024-2025







